摘要:重慶斌盛腳手架租賃公司是專業腳手架和吊籃租賃公司,主要從事:重慶腳手架租賃,聯系電話:13983187888!
一、什么是懸挑式腳手架?

懸挑式腳手架是指架體構造卸荷在附著于建筑構造的剛性懸挑梁(架)上的腳手架,用于建筑施工中的主體或裝修工程的作業及其平安防護需求,每段搭設高度不得大于24m。
懸挑架的支承構造應為型鋼制造的懸挑梁或懸挑桁架等,不得采用鋼管;其節點應螺栓聯合或焊接,不得采用扣件銜接。與建筑構造的固定方式應經設計計算肯定。
順應于鋼筋混凝土構造、鋼構造高層或超高層,建筑施工中的主體或裝修工程的作業及其平安防護需求。
二、懸挑式腳手架施工工藝流程
施工準備→放線定位→預埋圓鋼錨環→懸挑架的支承構造裝置→豎立桿→將縱向掃地桿與立桿扣接→裝置橫向掃地桿→裝置縱向程度桿→裝置橫向程度桿→裝置連墻件→裝置剪刀撐→扎色帶及張掛平安網→作業層鋪腳手板和擋腳板。
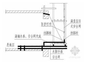
(1)主體施工,做到防護先行,外架應高出作業樓層1.5m以上。
(2)鎖槽鋼底部程度桿,便于槽鋼布置
(3)槽鋼布置完成后、拉通線檢查并校正外挑長度,確保美觀
(4)轉換架層槽鋼布置完成后全貌
(5)程度桿應鎖在槽鋼頂部焊接的定位樁上,確保架體整體穩定性
(6)立桿搭設
(7)裝置縱、橫向程度桿
(8)張掛色帶
(9)張掛密目平安網
(10)搭設完成后組織專項驗收,合格前方可投入運用。
三、懸挑腳手架的搭設請求
(1)型鋼懸挑梁宜采用雙軸對稱截面的型鋼。如工字鋼,工字鋼構造性能牢靠,雙軸對稱截面,受力穩定性好,較其他型鋼選購、設計、施工便當。
(2)懸挑鋼梁型號及錨固件應按設計肯定,鋼梁截面高度不應小于160mm。懸挑梁尾端應在兩處及以上固定于鋼筋混凝土梁板構造上。錨固型鋼懸挑梁的U型鋼筋拉環或錨固螺栓直徑不宜小于16㎜。
(3)用于錨固的U型鋼筋拉環或螺栓應采用冷彎成型。U型鋼筋拉環、錨固螺栓與型鋼間隙應用鋼楔或硬木楔楔緊。每個型鋼懸挑梁外端宜設置鋼絲繩或鋼拉桿與上一層建筑構造斜拉結。鋼絲繩、鋼拉桿不參與懸挑鋼梁受力計算;
(4)鋼絲繩與建筑構造拉結的吊環應運用HPB235級鋼筋,其直徑不宜小于20㎜,吊環預埋錨固長度應契合現行國度規范。
(5)懸挑鋼梁懸挑長度應按設計肯定,固定段長度不應小于懸挑段長度的1.25倍。型鋼懸挑梁固定端應采用2個(對)及以上U型鋼筋拉環或錨固螺栓與建筑構造梁板固定,U型鋼筋拉環或錨固螺栓應預埋至混凝土梁、板底層鋼筋位置,并應與混凝土梁、板底層鋼筋焊接或綁扎結實,其錨固長度應契合現行國度規范。
(6)錨固位置設置在樓板上時,樓板的厚度不宜小于120mm。假如樓板的厚度小于120mm應采取加固措施。型鋼懸挑梁懸挑端應設置能使腳手架立桿與鋼梁牢靠固定的定位點,定位點離懸挑梁端部不應小于100mm。
(7)懸挑鋼梁前端應采用吊拉卸荷,吊拉卸荷的吊拉構件有剛性的,也有柔性的,假如運用鋼絲繩,其直徑不應小于14㎜,運用預埋吊環其直徑不宜小于20㎜(或計算肯定),預埋吊環應運用HPB235級鋼筋制造。鋼絲繩卡不得少于3個。
(8)懸挑鋼梁懸挑長度普通狀況下不超越2m能滿足施工需求,但在工程構造部分有可能滿足不了運用請求,部分懸挑長度不宜超越3m。
(9)在建筑構造角部,鋼梁宜扇形布置;假如構造角部鋼筋較多不能留洞,可采用設置預埋件焊接型鋼三角架等措施。
(10)懸挑鋼梁支承點應設置在構造梁上,不得設置在外伸陽臺上或懸挑板上,否則應采取加固措施。
四、懸挑式腳手架其他應留意的平安技術問題
連墻體的設置,剪力撐的設置,縱橫向掃地桿的設置,架體單薄位置的增強,卸料平臺的搭設等與《建筑施工扣件或鋼管腳手架平安技術標準》(JGJ130-2011)的請求根本一樣。其中高度超越設計高度的架件,由于懸伸長度較長就降低了懸挑梁的抗彎性能與整體穩定性,因而在此處必需有牢靠的增強措施。
懸挑架底必須張掛平安平網防護,其他防護也與落地式鋼管腳手架一樣。 |